E-mail: contato@construaguaira.com.br

Fixo: +55 44 3642-2058

Celular: +55 44 98837-2864

Imóveis à venda

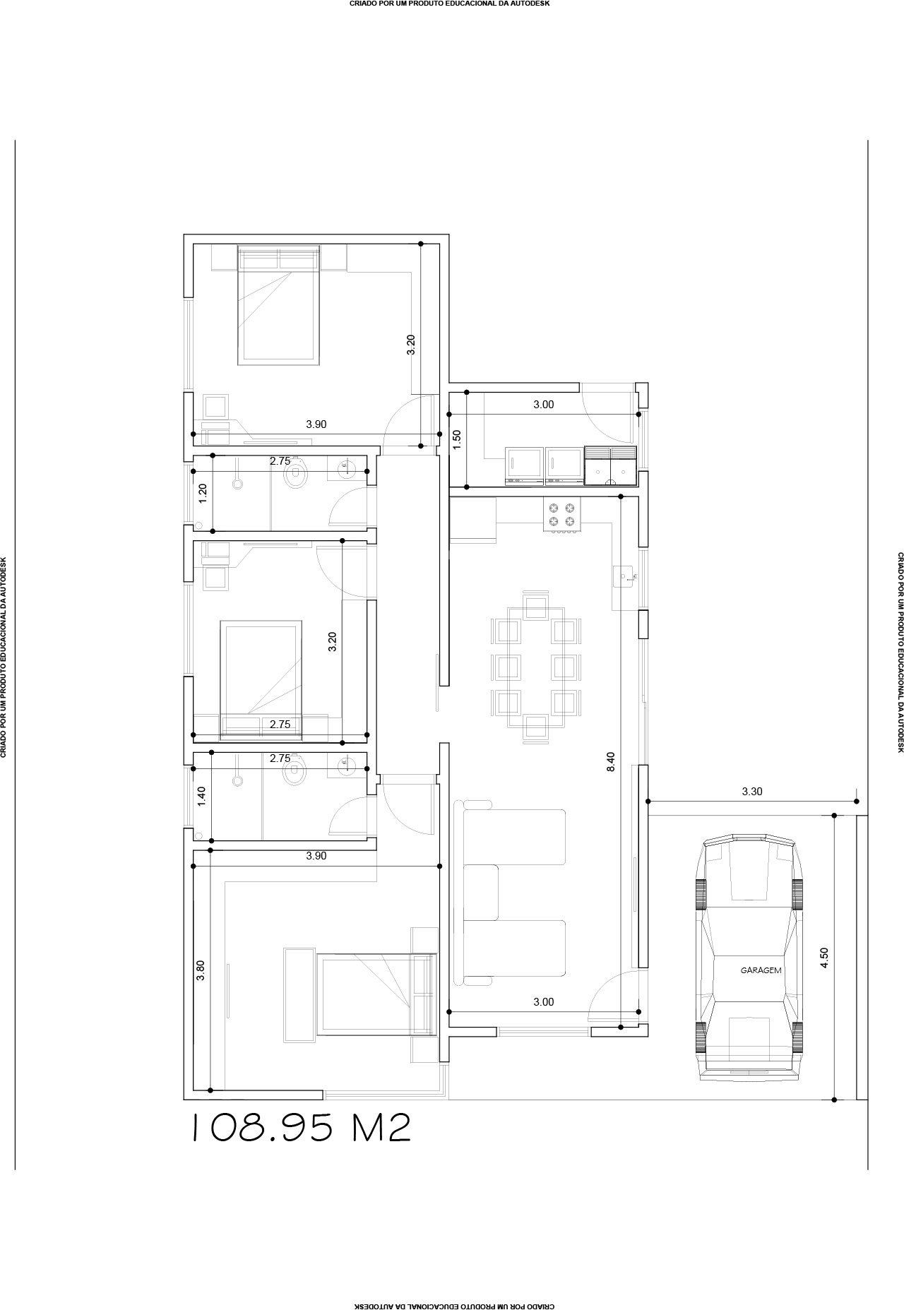
Imóvel 01 – Jardim Belvedere

Construa vende:
108,95m2 de area útil
317,25m2 de terreno de esquina
Rua Atilio de Nadai n.268 esquina
Jardim Belvedere

WeCreativez WhatsApp Support
Está precisando de ajuda? Fale com um de nossos atendentes.
👋 Olá! Posso te ajudar?